BUPA Architectures, cabinet architecte aux Chartrons, Bordeaux.

Help

Arrow Left : Move Left
Arrow Right : Move Right
Arrow Down : Move Down
Arrow Up : Move Up
 
P : PAUSE

pac-man

Lucio PANEPINTO
2015

Personnage  /  Surnom
- shadow
"blinky"
- speedy
"pinky"
- bashful
"inky"
- pokey
"clyde"
- help -
GitHub - Lucio PANEPINTO - Pac-Man

pac-man

1UP

0

Score

0
- help -

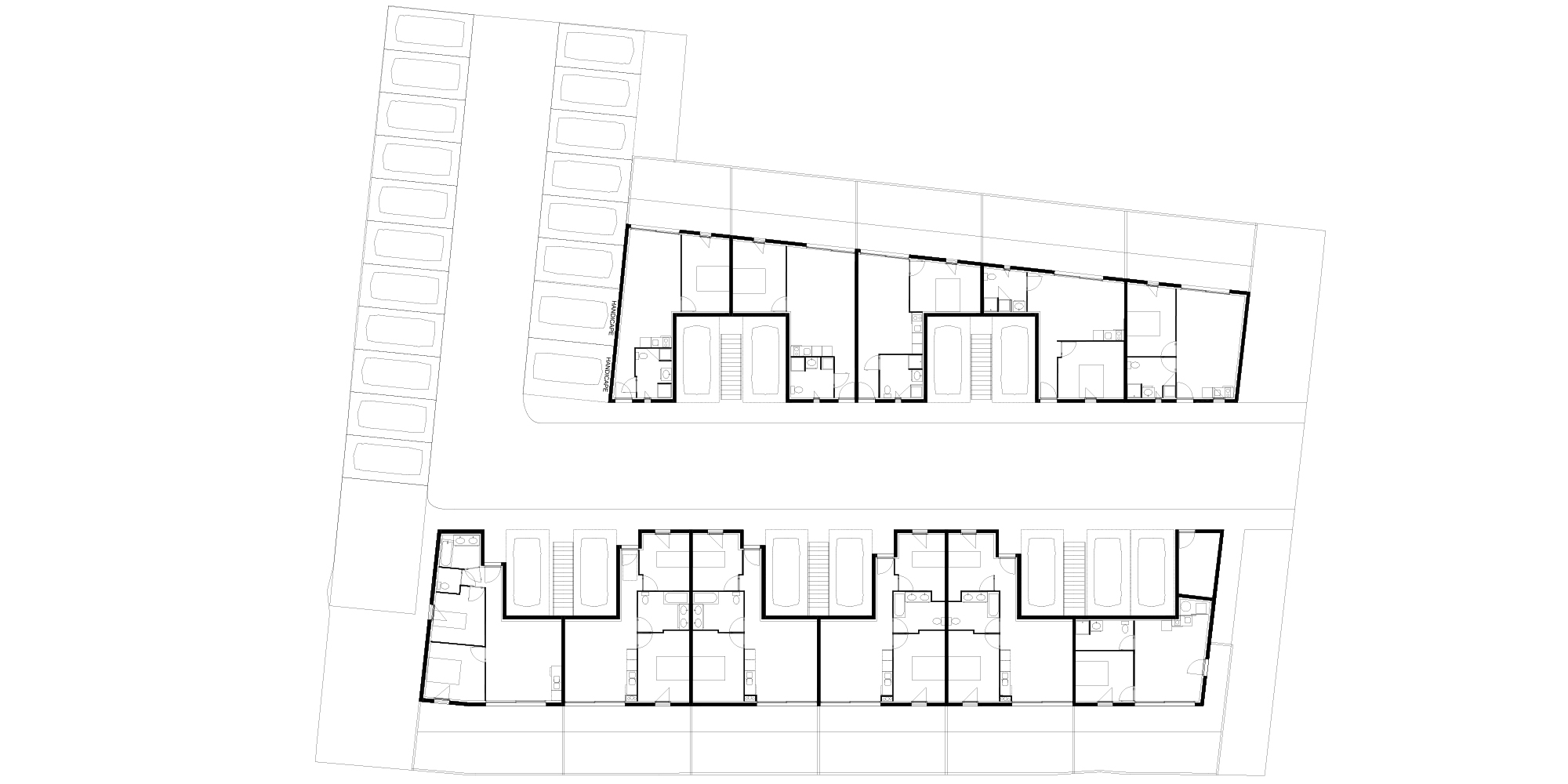
21 Logements Bois BBC


Le Haillan

Situation
En cours
Localisation
Le Haillan (33185)
Maître d'ouvrage
Immopolis
Surface
1158 m² (SHAB)
Coût
1 500 000 €
Coût au m²
1 295,34 €/m²

De petits volumes en bois se disposent de part et d'autres d'une rue centrale. Les logements possèdent tous un accès individuel, et ceux qui sont superposés voient leurs espaces de vie orientés dans la direction opposé du logement sur lequel ils sont positionnés, afin d'éviter les vis à vis. La couleur s'intègre sur les gardes corps et en saillie des façades par des plexiglass colorés afin d'identifier chaque logement et de lui donner un caractère unique et reconnaissable.

 


tous
vidéos
images
plans
projet
chantier
réalisé