BUPA Architectures, cabinet architecte aux Chartrons, Bordeaux.

Help

Arrow Left : Move Left
Arrow Right : Move Right
Arrow Down : Move Down
Arrow Up : Move Up
 
P : PAUSE

pac-man

Lucio PANEPINTO
2015

Personnage  /  Surnom
- shadow
"blinky"
- speedy
"pinky"
- bashful
"inky"
- pokey
"clyde"
- help -
GitHub - Lucio PANEPINTO - Pac-Man

pac-man

1UP

0

Score

0
- help -

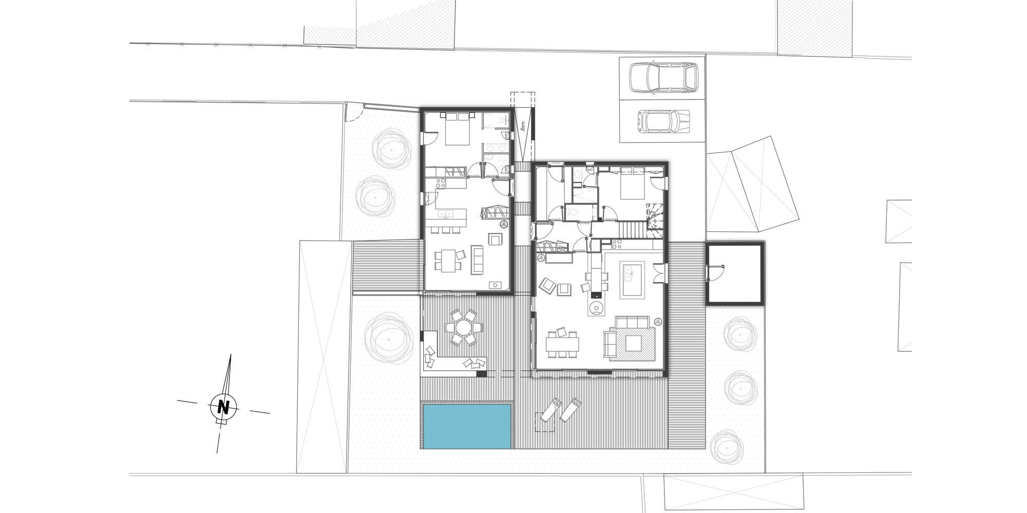
Maison individuelle


Bègles

Situation
Terminé
Année
2020
Localisation
Bègles (33130)
Maître d'ouvrage
Privé
Surface
190 m² (SHAB)
Coût
500 000 €
Coût au m²
2 631,58 €/m²

Cette maison individuelle à Bègles travaille sur une architecture brute et épurée.

La maison se compose de volumes simples recouverts de béton. Les rapports d'emprise, de hauteur et de distance entre les volumes génèrent des situations et des ambiances différentes au sein du projet.

Le bois se retrouve au coeur du projet : il tapisse le sol et ponctuellement vient marquer des pergolas. Le contraste entre les deux matériaux, l'un plutôt chaleureux, l'autre plutôt froid, confèrent au projet une homogénéité et de véritables qualités spatiales.

Les continuités intérieur-extérieur et les généreuses terrasses orientées au sud en font une maison agréable à vivre !

 

Crédit reportage photo : Arthur Péquin


tous
vidéos
images
plans
projet
chantier
réalisé