| Arrow Left : | Move Left |
| Arrow Right : | Move Right |
| Arrow Down : | Move Down |
| Arrow Up : | Move Up |
| P : | PAUSE |
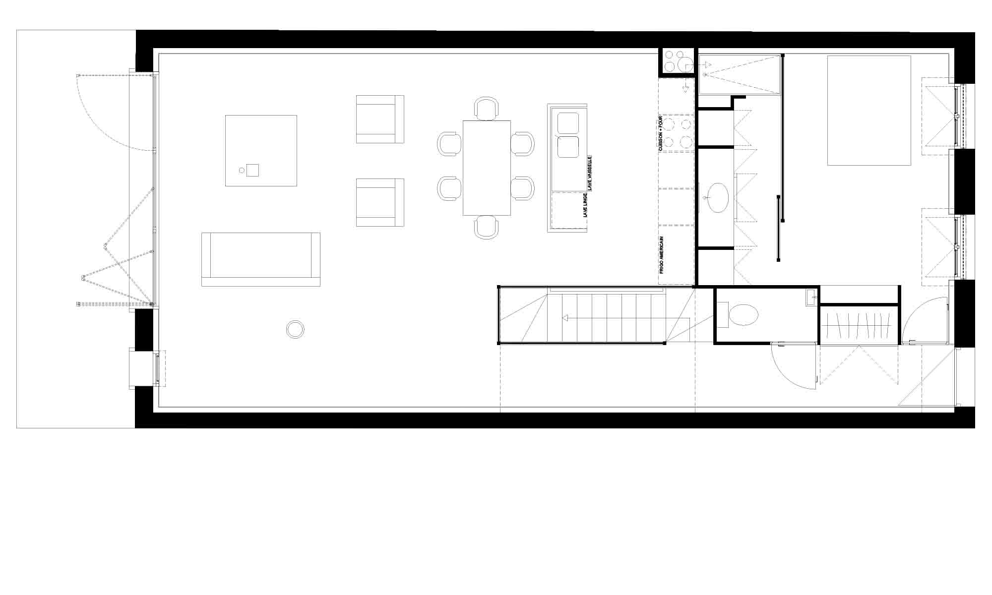
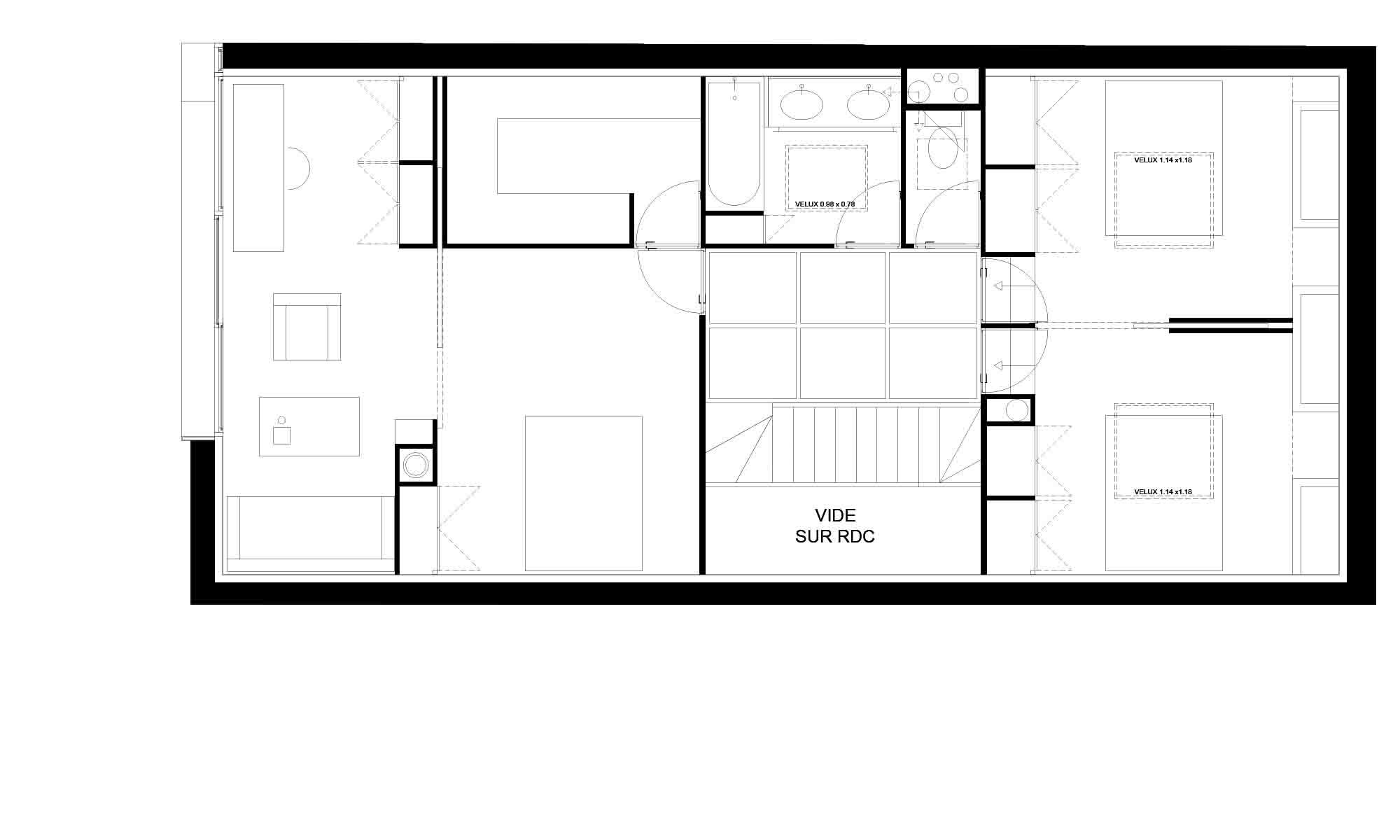
Suite à la demande du propriétaire, une extension a été réalisée sur l’ échoppe qui s’adosse à une construction en pierre. Pour cette extension, le choix s’est porté sur une intervention légère et transparente. Un vide sur RDC a été percé au centre de la construction pour apporter de la lumière. Sa toiture transparente en continuité de la toiture existante en tuile en double pente permet de le transformer en un puits de lumière. Vers le jardin, un cube transparent vient s’imbriquer au mur en pierre. Ainsi, malgré sa forme en longueur et l’opacité de la pierre, cette échoppe beigne dans une lumière naturelle. Ce contraste entre la pierre et le verre travaille sur la dualité des matériaux afin de générer un équilibre entre la partie existante et l’excroissance ajoutée.