BUPA Architectures, cabinet architecte aux Chartrons, Bordeaux.

Help

Arrow Left : Move Left
Arrow Right : Move Right
Arrow Down : Move Down
Arrow Up : Move Up
 
P : PAUSE

pac-man

Lucio PANEPINTO
2015

Personnage  /  Surnom
- shadow
"blinky"
- speedy
"pinky"
- bashful
"inky"
- pokey
"clyde"
- help -
GitHub - Lucio PANEPINTO - Pac-Man

pac-man

1UP

0

Score

0
- help -

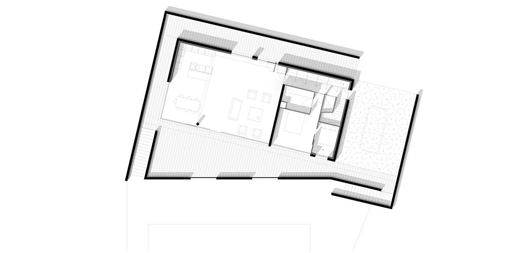
Maison individuelle


Camblanes et Meynac

Situation
Terminé
Année
2015
Localisation
Camblanes et Meynac (33360)
Maître d'ouvrage
Client Privé
Surface
215 m² (SHAB)
Coût
300 000 €
Coût au m²
1 395,35 €/m²

L’habitation de Camblanes-et-Meynac a la particularité d’avoir été bâtie sur un terrain en pente, entrainant la construction d’un projet en «escalier». En effet, le RDC abrite les pièces de vie et l’entrée principale, tandis que le sous-sol abrite les chambres. Celles-ci sont directement connectées avec l’extérieur, offrant une vue remarquable sur la nature environnante.

Le désaxement des deux niveaux permet aussi de créer une large terrasse au niveau du RDC, donnant la possiblité aux habitants de profiter d’un lieu extérieur. Le bois, utilisé pour le revêtement extérieur, permet au bâtiment de s’intégrer parfaitement au contexte et lui donne la caractéristique d’un lieu chaleureux et accueillant. Son bardage vertical s’oppose au béton, utilisé pour souligner l’horizontalité ainsi que les différents accès à l’habitation et aux espaces extérieurs.


tous
vidéos
images
plans
projet
chantier
réalisé